ООО «ПТЭ-87»
промышленная теплоэнергетика -
поставка оборудования

+7 (4872) 25-13-92, +7 (910) 157-94-95
300012, г. Тула, улица Рязанская, д. 38, офис 406
ПТЭ-87 - Главная » Клапаны газоплотные ПГВУ

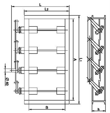
Клапаны газоплотные ПГВУ

Клапаны газоплотные ПГВУ предназначены для регулирования подачи и отключения рабочей среды в трактах пылегазовоздухопроводов с температурой Т=425°С и давлением Р=0.004 МПа. Изготавливаются в соответствии с ТУ 34-10-10633-95.

          Клапаны газоплотные прямоугольные ПГВУ

Техническая информация:

  • Исполнение: левое или правое.
  • Корпус и заслонка клапана: стальные сварные или чугунные. Для использования в агрессивных средах возможно изготовление из нержавеющей стали 08Х18Н10Т.
  • Рабочее давление среды: не более 0,004 МПа.
  • Макимальная температура среды: +425°С.

Клапаны ПГВУ изготавливаются в соответствии с документацией:

  • Клапан круглый Ду100-1400: ПГВУ 291÷292-80
  • Клапан прямоугольный: ПГВУ 295-80 (односный), ПГВУ 296-80 (двухосный), ПГВУ 297-80 (трехосный), ПГВУ 298-80 (четырехосный), ПГВУ 299-80 (пятиосный)
  • ТУ 34-10-10633-95
Способ монтажа:
Монтаж производится к ответным фланцам, изготавливаемым по ПГВУ 094-80, привариваемым к газоходу.

Пример условного обозначения:

  • клапан ПГВУ Ду800 правого исполнения - Клапан Ду800 17ПГВУ 292-80
  • клапан ПГВУ Ду800 левого исполнения - Клапан Ду800 18ПГВУ 292-80

 

Чертежи
Клапан газоплотный круглый ПГВУ 291..292-80 - ЧертежКлапан газоплотный прямоугольный ПГВУ 297-80 - Чертеж